Leased

Unit 5, 22 Walker Street, South Windsor

Contact Agent

4

Leased by Express Commercial

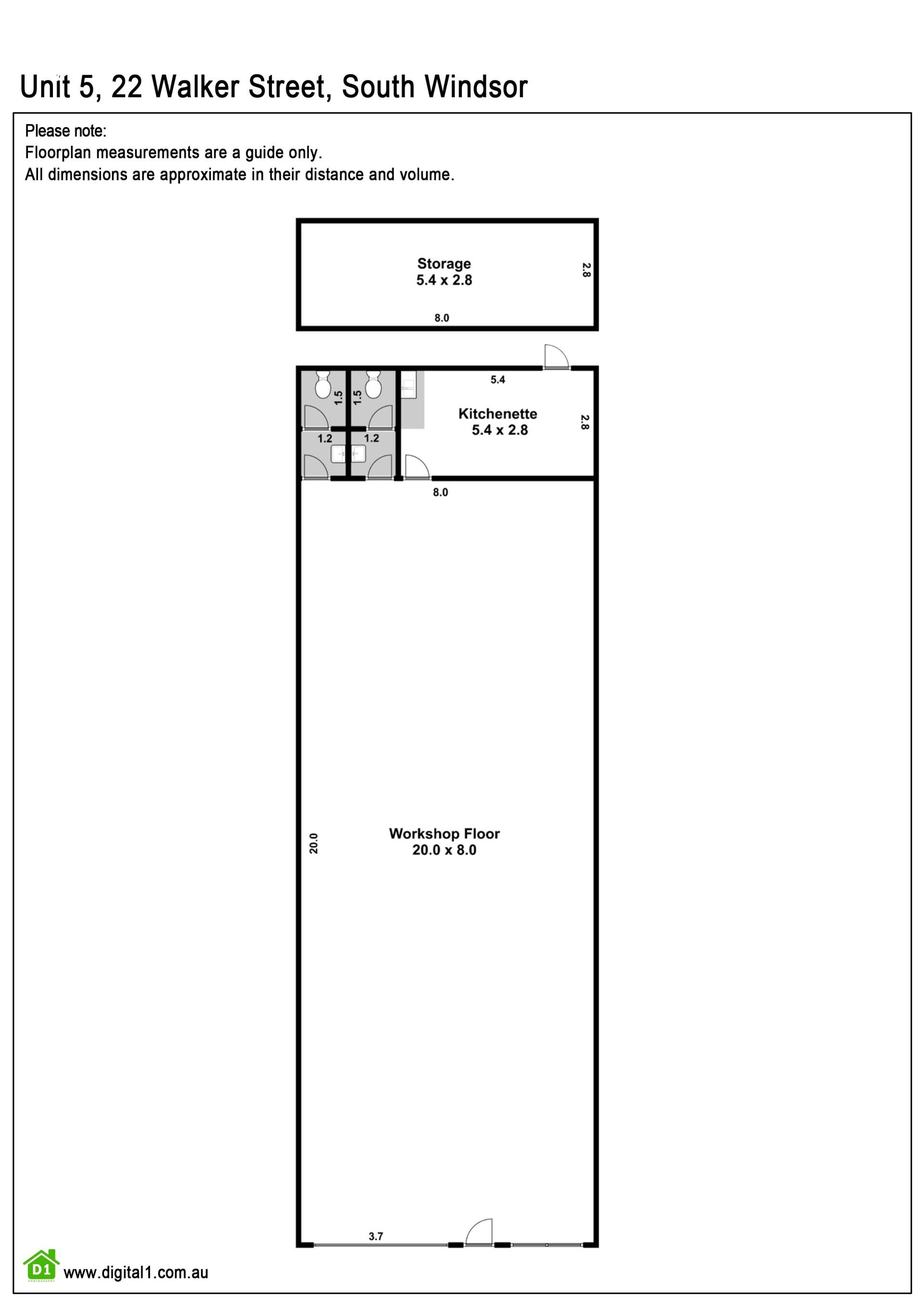
Presenting this 188m2 factory unit, located in the popular and well-established industrial area of South Windsor. Great position, providing quick access to public transport and major arterial roads. Suitable for mechanical use.

 

Highlights:
* 188m2 floor area (approx.)
* Four (4) allocated parking spaces
* 4.2m high door
* Amenities include two (2) bathrooms, kitchenette, lunchroom/office
* Suitable for mechanical use
* Complex of 10 units
* Great location, convenient to Windsor Station, Windsor Road, Richmond Road and Hawkesbury Valley Way
* Strata rates $629.42/quarter, Council rates $647.00/quarter (approx.)
* Available December 2023

 

Disclaimer: We have obtained all information in this document from sources we believe to be reliable, however, we cannot guarantee its accuracy. Prospective tenants are advised to carry out their own investigations.

4

Details

Address Unit 5, 22 Walker Street, South Windsor
Price Contact Agent
Property Type Commercial
Property ID 281
Category Industrial/Warehouse
Warehouse Area 188m2

Tools

Share This Property